
豪橫!147㎡大house只做三居室。追求寬敞悠閑家居、注重自我表達的90后夫婦,不僅是熱衷于時尚的潮流達人,還有一顆追逐自由的心。
打破客廳、餐廳和陽臺的界線,通透的空間有了“大橫廳”的味道。不裝電視,又有一絲“去客廳”化的設計傾向。


用“對比”塑造
入戶花園的靈動
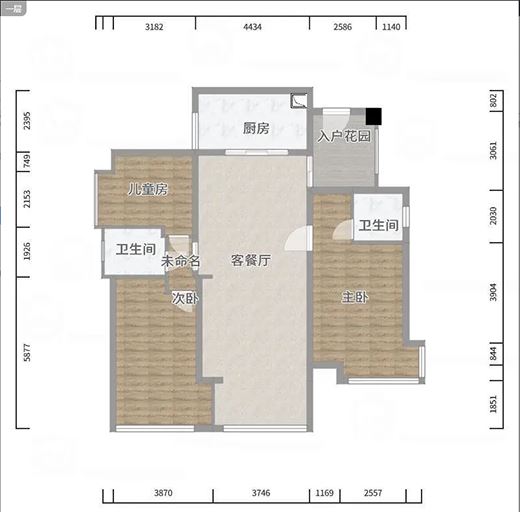
二三線城市的住宅,從入戶開始就要讓人瞳孔炸裂:這才是名副其實的入戶“花園”!

深淺拼色入戶柜,高低搭配,開、關組合,有對比的空間,富有變化和靈動感。
弱化客廳/陽臺/餐廳邊界,
打造大“橫廳”式自由空間
怎樣把豪宅才會有“橫廳”超大開間,移植到普通住宅?將客廳和陽臺、餐廳做成一體式空間,形成一個“大客廳”,不再刻意劃分邊界。


客餐廳和陽臺連成一片,空間感和采光都達到了最大化的效果。給有小朋友的家庭也“釋放”出了足夠多的活動空間。


沒有玄關,沒有隔斷,空間不再具有固定、僵硬的界定,而是彼此柔和相融。


放置圓形餐桌,空間也是綽綽有余。一家十口、四世同堂圍餐,依然是十分敞亮。
三段式一體定制衣柜
飆升主臥顏值與空間質感
封閉式門板和玻璃門衣柜,搭配開放式鏤空收納柜格,讓主臥空間呈現出不同的材質肌理質感,又富有空間層次。

大皮床,落地窗
次臥媲美主臥的既視感
147㎡三房里的次臥接近主臥空間面積。沉穩內斂的色調和簡約風格都很適合父母居住。二三線城市住宅比起一線城市,空間上的優越感顯而易見。


嵌入式衣柜和書柜,將家具與墻面融合為一體,平整統一,兼具美觀與實用。安裝了投影設備的次臥,娛樂追劇都能輕松駕馭。
多功能,強收納
人人都愛榻榻米
榻榻米的流行,和空間利用、整體感、高顏值有很大的關系,取一處較小的空間做榻榻米成了很多家庭的首選。

這樣的灰色+粉色拼色混搭,成為近年小紅書上的爆款組合,精致可愛很適合女孩。空間小顏色少才是榻榻米的王道。
淺色U形廚房
顯空間又方便日常打理
白亮光櫥柜搭配大理石紋臺面和墻面,耐臟又方便清潔,還給人以干凈整潔的感覺。


冰箱和消毒柜做嵌入式設計更顯美觀,飾以黑框和線條空間方正平整,簡約大方。
